
Säkerhetsstängsel i metall tillverkas av Liweiyuan, en professionell kinesisk stålkonstruktionstillverkare. Fabriksförsäljning garanterar garanterad kvalitet. De används ofta som säkerhetsanordningar för väggar, staket och inhägnader. Vi välkomnar din förfrågan!
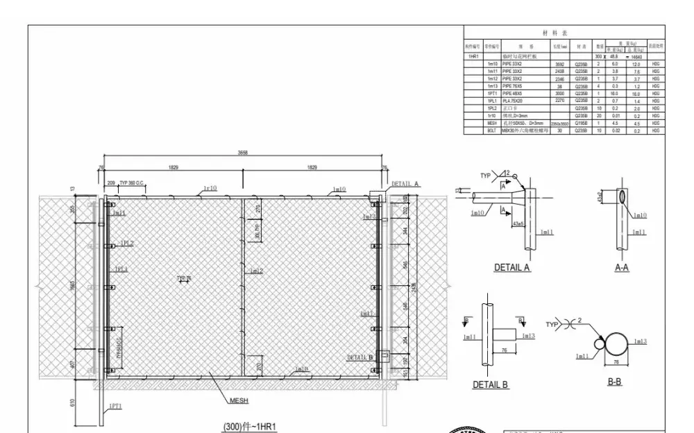
De viktigaste strukturella komponenterna i Liweiyuans säkerhetsstängsel av metall inkluderar ramen, längsgående balkar, kopplingar och stödstolpar. Ramen är huvudsakligen konstruerad av en mängd olika metallmaterial och finns i en mängd olika former för att möta individuella designbehov. Rammaterial inkluderar i första hand galvaniserad stålplåt, galvaniserat rundrör, galvaniserat fyrkantsrör och kedjelänksstängsel. Dessa material är valda för sin hållbarhet och korrosionsbeständighet. De längsgående balkarna är fixerade mellan stängselramarna, vilket förbättrar deras styrka och seghet, vilket gör dem mer stabila och pålitliga.
Kontaktdon är nyckelkomponenter som ansluter staketet till stödstolparna. Vi använder galvaniserad stålplåt, galvaniserad rundstål och galvaniserade rör. Dessa material erbjuder utmärkt vind- och jordbävningsmotstånd, förhindrar att det lossnar under användning och säkerställer säkerheten och stabiliteten hos stängslet. Stödstolparna är de primära stödjande komponenterna i staketet. Vi kan använda en mängd olika supportinlägg beroende på plats, behov och miljö. Materialen som används för dessa stolpar måste dock ha hög stabilitet, vind- och jordbävningsbeständighet och hållbarhet för att garantera säkerheten under användning.


Våra säkerhetsstängsel i metall är avtagbara och återanvändbara. Deras höjd, bredd och anslutningsmetoder kan designas och tillverkas för att passa kundernas behov och tillämpningsscenarier, vilket säkerställer säkerhet och miljövänlighet.


Våra säkerhetsstängsel av metall skiljer effektivt byggarbetsplatser från andra byggnader och vägar, vilket skapar en isolerad arbetsyta. De kan tas isär och återmonteras vid behov.
Verkstadsisoleringsnät används ofta i industriverkstäder som säkerhetsutrustning, främst för att avgränsa arbetsområden, isolera farlig utrustning och skydda arbetare.
Våra produkter kan även användas som stängsel för att skydda inomhusarbetsområden. De används ofta i olika lagringsanläggningar, såsom lager, logistikcenter och fabriker.
Vanliga storlekar för Liweiyuan metallsäkerhetsstängsel inkluderar: 2 meter långa och 1,5 meter höga; 2,5 meter lång och 2 meter hög; och 3 meter lång och 2,5 meter hög. Anpassade storlekar finns tillgängliga. Stålmaterial inkluderar Q235B, Q355B, A36 och A572, som uppfyller europeiska och amerikanska standarder.
