
Stålkonstruktionsrännor är en avgörande komponent i en byggnads takavvattningssystem. Deras primära funktion är att samla upp regnvatten från taket, leda det in i vertikala rör och sedan släppa ut det till utomhusavloppssystemet, vilket förhindrar att det direkt eroderar väggar eller blötlägger grunder. Liweiyuans produktdesign och installation kännetecknas av hög hållfasthet och låg vikt, vilket säkerställer smidig dränering och exceptionell hållbarhet.
Stålkonstruktionsrännor är en avgörande komponent i en byggnads takavvattningssystem. Deras primära funktion är att samla upp regnvatten från taket, leda det in i vertikala rör och sedan släppa ut det till utomhusavloppssystemet, vilket förhindrar att det direkt eroderar väggar eller blötlägger grunder. Liweiyuans produktdesign och installation kännetecknas av hög hållfasthet och låg vikt, vilket säkerställer smidig dränering och exceptionell hållbarhet.
Liweiyuans stålkonstruktionsränna är gjord av korrosionsbeständiga och slagtåliga material.
Vår produkt är varmförzinkad, erbjuder utmärkt korrosionsbeständighet, låg kostnad och lång livslängd. Finns i tjocklekar på 1,5-2,5 mm, den är lämplig för de flesta applikationer.
Tillverkad av rostfritt stål erbjuder denna produkt korrosionsbeständighet och är särskilt lämplig för kustnära eller fuktiga miljöer. Finns i tjocklekar på 1,0-2,0 mm, den erbjuder ett högre pris men lång livslängd.
Våra färgbelagda stålprodukter är baserade på galvaniserat stål, belagda med en väderbeständig beläggning, såsom polyester eller fluorkarbon, för både korrosionsbeständighet och dekorativa effekter. Tillgängliga i tjocklekar på 1,2-2,0 mm är de lämpliga för byggnader som kräver en hög nivå av estetisk tilltalande.
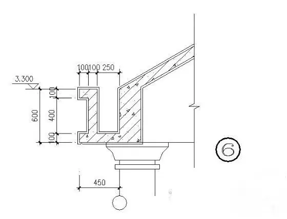
Den strukturella formen på stålkonstruktionsrännan måste anpassas till taklutningen och takfotens design. Vanliga typer inkluderar U-formade och V-formade. Installationsprocessen är som följer:
Våra stålkonstruktionsrännor använder rännfästen i vinkelstål för att fästa dem vid stålkonstruktionens takfotsbalkar eller räfflor. Fästavståndet är 600-1000 mm för att säkerställa jämn spänningsfördelning över rännan.
De färdiga rännorna är fördimensionerade och ansluts på plats med kopplingar eller svetsning. Tätningsmedel krävs i korsningen mellan rännan och takgolvet.
Vi kan montera en beslag ovanför taktäcket. Den nedre änden av rännan ska placeras under taktäcket och tätas med tätningsmedel. Avloppshål bör finnas i botten av rännan, i första hand för anslutning till regnvattensteg.
Vår tillverkningsprocess för stålkonstruktionsrännor inkluderar kapning enligt ritningsmått, bockning, målning, inspektion av färdig produkt, förpackning och frakt. Liweiyuans stålkonstruktionsrännor är designade och installerade för att säkerställa korrosionsbeständighet, jämn dränering och hållbarhet, vilket säkerställer effektiv dränering.